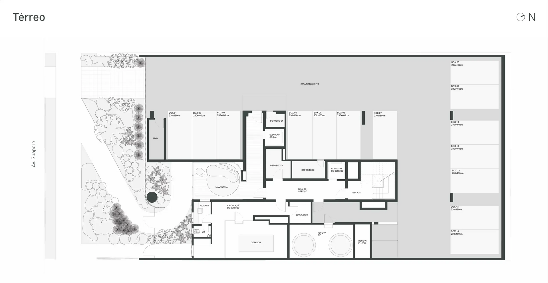
Infrastrutura Completa (Térreo, 2º Pavimento - Estacionamento, 3º Pavimento - Lazer Condominial)

Planta baixa arquitetônica de um edifício com terraço e paisagismo. Mostra cômodos, corredores.