home
Fundo branco.
Menu
Menu
Início
Sobre
Empreendimentos
Jobim - Lançamento
Casa Guaporé - Últimas unidades
Contato
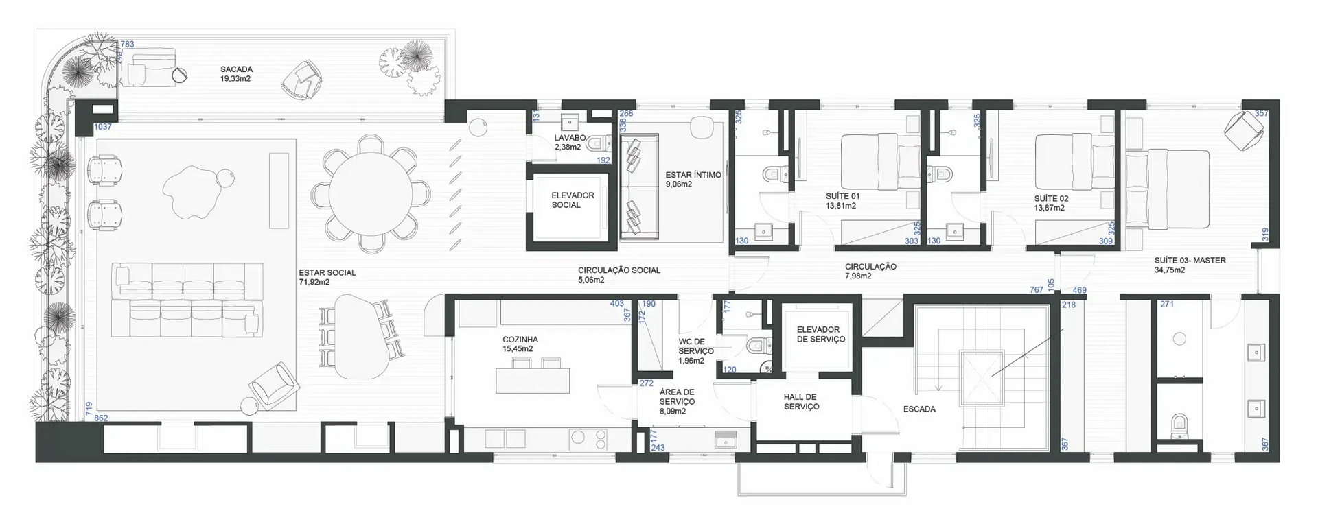
Apartamento - Tipo B N 242 M² privativos, 3 Suítes + Estar Íntimo